Teilbare Gewerbefläche im Herzen von Bergisch Gladbach
Eckdaten
- Art Bürofläche
- Lage 51465 Bergisch Gladbach
- Mietpreis pro m² 10,50 €
- Nebenkosten 550,00 €
- Gewerbefläche ca. 123 m²
- Bürofläche ca. 123 m²
- Zimmer 1
- Minimale Teilfläche 60
- Kellerfläche ca. 30 m²
- Baujahr 1986
- Gesamtfläche ca. 123 m²
- Nutzfläche ca. 123 m²
- Etagenzahl 4
- Etage 1
- Heizungsart Gas-Heizung
- Kaution 2000,00 €
- Aufzug ja
- Bezugstermin nach Absprache
- Bodenbelag Beton
- Zustand Gepflegt
- Immobilien-ID 24/06/01
- Provision 3,57 Monatsnettomieten inclusive 19 % MwSt. inkl. MwSt.
Immobilie
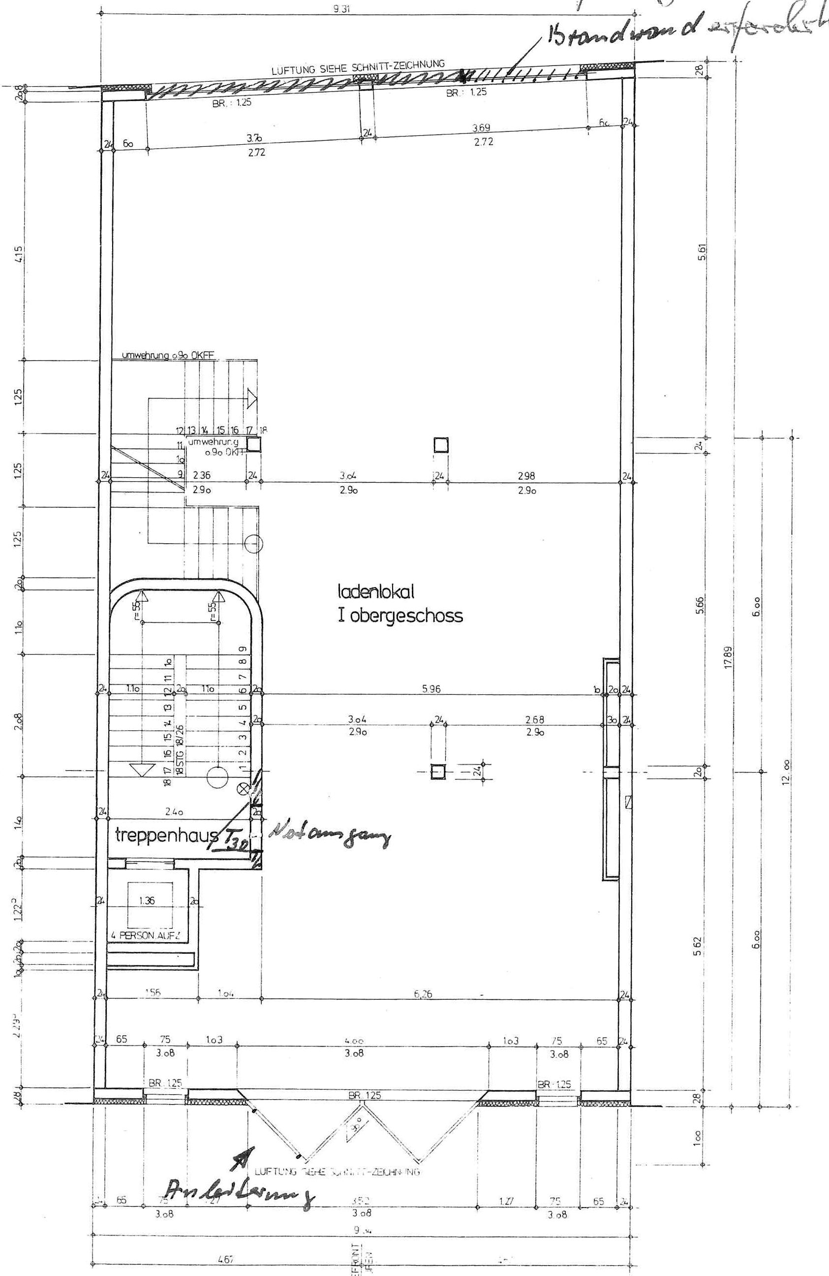
Die angebotene Gewerbeeinheit befindet sich im 1. Obergeschoss eines Wohn-/Geschäftshauses im Herzen von Bergisch Gladbach.
Das Haus selbst wurde 1986/87 in konventioneller Bauart, massiv erstellt.
Das Erdgeschoss ist an einen Namhaften Filialisten vermietet.
Die hier angebotene Einheit im 1. Obergeschoss wir vom Vermieter selbst genutzt. Eine Übernahme kann nach Absprache kurzfristig erfolgen.
Lage
Diese Büro-/Praxiseinheit befindet sich in einer sehr gut frequentierten Seitenstraße der Innenstadt in direkter Nähe zum Busbahn-/S-Bahnhof in Bergisch Gladbach.
Bergisch Gladbach zählt zu den beliebtesten Wohnorten im rechtsrheinischen Bereich. Sehr gute Verkehrsanbindungen nach Köln, Leverkusen und Düsseldorf sind über die Linie S 11 gegeben.
Alle Geschäfte des täglichen Bedarfs wie z.B. Banken, Schulen, Kindergärten sowie Ärzte sind in wenigen Minuten erreichbar.
Sonstiges
Sämtliche Angebote sind freibleibend und basieren auf Informationen, die uns die Eigentümer bzw. Vermieter erteilt haben; eine Haftung für deren Richtigkeit und Vollständigkeit wird hiermit ausdrücklich ausgeschlossen.
Zwischenverkauf bzw. -vermietung bleibt dem Eigentümer / Vermieter vorbehalten.
Die abgebildeten Zeichnungen und Fotografien erheben keinen Anspruch auf Maßstabtreue, Ausstattung und Richtigkeit. Sie dienen lediglich dem Überblick über die ungefähre Größe und Lage der Räume.
Entscheidend sind allein die tatsächlich vorhandenen Gegebenheiten.
Die Provision ist fällig und zahlbar mit Abschluss des Mietvertrages.
Energieausweisangaben
- Heizungsart Gas-Heizung
- Befeuerung / Energieträger Gas
Herzlichen Dank für Ihre Anfrage.
Wir werden diese so schnell wie möglich bearbeiten.

